Wired for Success
Grounded in Quality
Contact Us

At HMN, our mission is to provide quick, efficient and reliable permitting and construction drawing services for our clients. We are dedicated to meeting the unique needs of the telecommunications industry, while exceeding expectations through our commitment to quality and attention to detail. We strive to be the industry leader in our field and to continuously improve our services to meet the ever-changing needs of our clients. Our end-to-end service guarantees efficient communication, timely drafting and processing of permits. Contact us as soon as you plan to start your construction project, to ensure a speedy permit approval process.

Services

Consultation

We can provide assistance at many stages of your project.

  • Project Management
  • Site-Analysis
  • Risk Mitigation
  • Feasibility Study
  • Utility Coordination
  • Drafting

    We provide a variety of drafting services including:

  • Encroachment Maintenance & Removal Agreements
  • Construction Drawings
  • Traffic Control Plans
  • Make-Ready Engineering

    Fielding and structural loading for utility poles to accommodate the installation of new SC-WCF equipment

  • Site Surveys
  • Make-Ready Applications
  • Utility Pole Profiles
  • Structural Analysis
  • Photosimulations
  • Permitting

    We are experiened with permitting requirements across Southern California, specializing in San Diego County and Greater Los Angeles.

  • Construction Drawing Permits
  • Traffic Control Permits
  • Noise Permits
  • Portfolio

    A selection of project examples.

    an image of an example construction drawing
    Construction Plan (Wet)
    Proposed water utility addition.
    ... ...
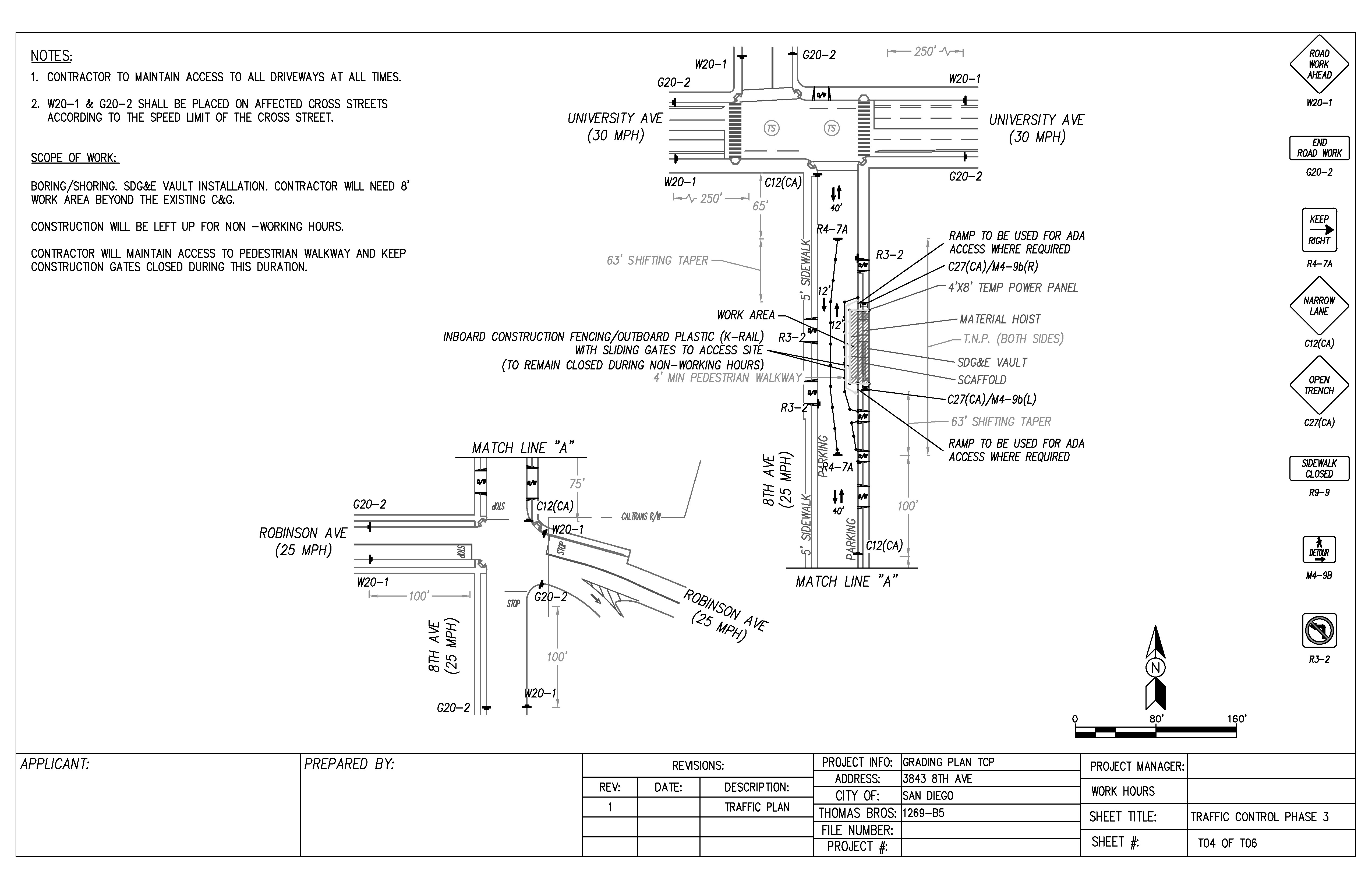
    Traffic Control Plans
    Temporary Traffic Control plans
    ...
    EMRA
    Encroachment Maintenance and Removal Agreement
    ...
    Construction Plan (Dry)
    Proposed electric utility addition.
    ...
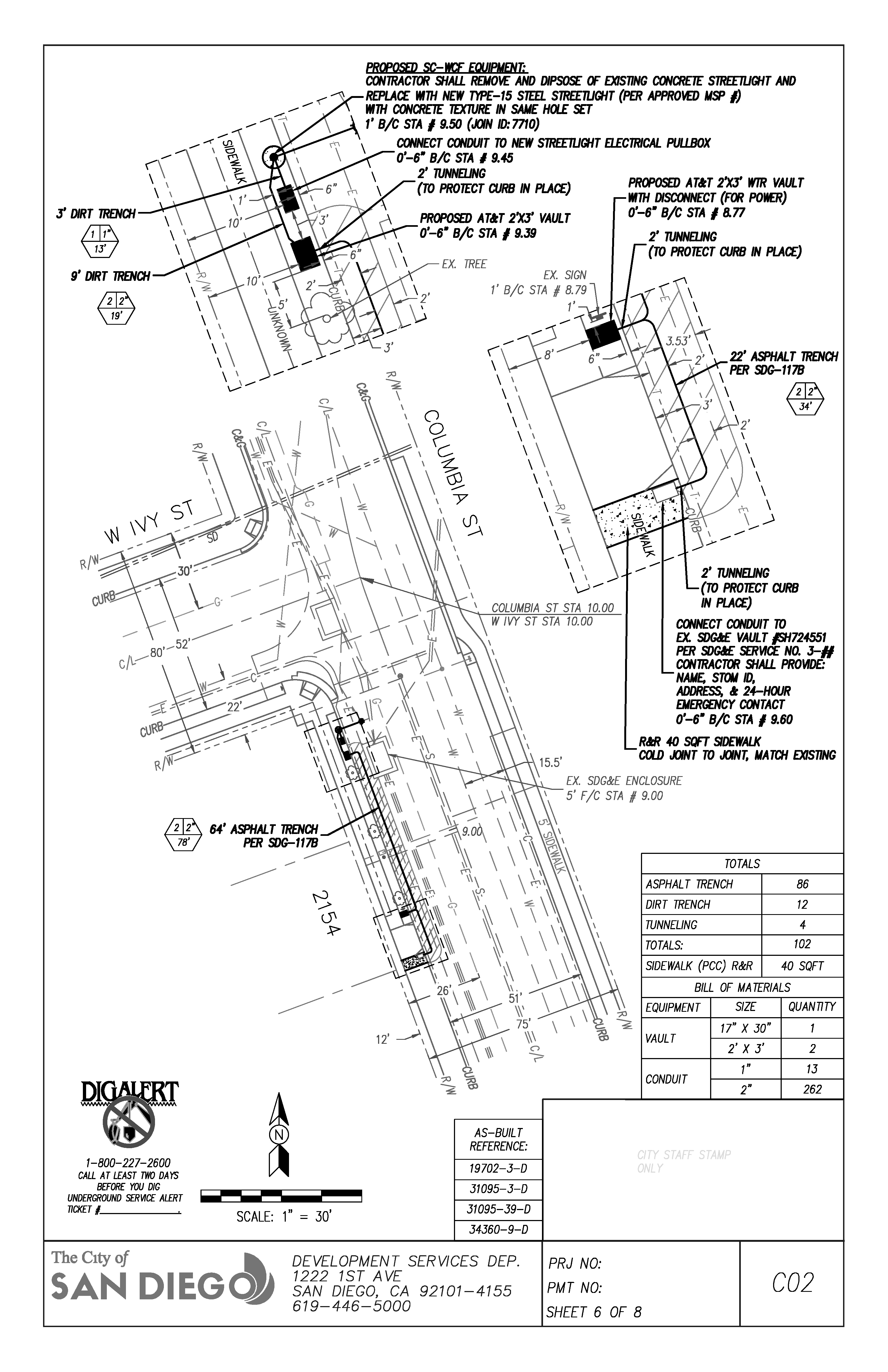
    Construction Plan (SC-WCF Power Utility Coordination)
    Proposed small cell utility trench connecting to approved Power Utility source.
    ...
    Construction Plan Profile (SC-WCF Streetlight Profile)
    Proposed small cell equipment on existing streetlight or replacement pole profile.